• Work
  • Contact
David Anderson | Work
  • Work
  • Contact

Columbia Heights Suite

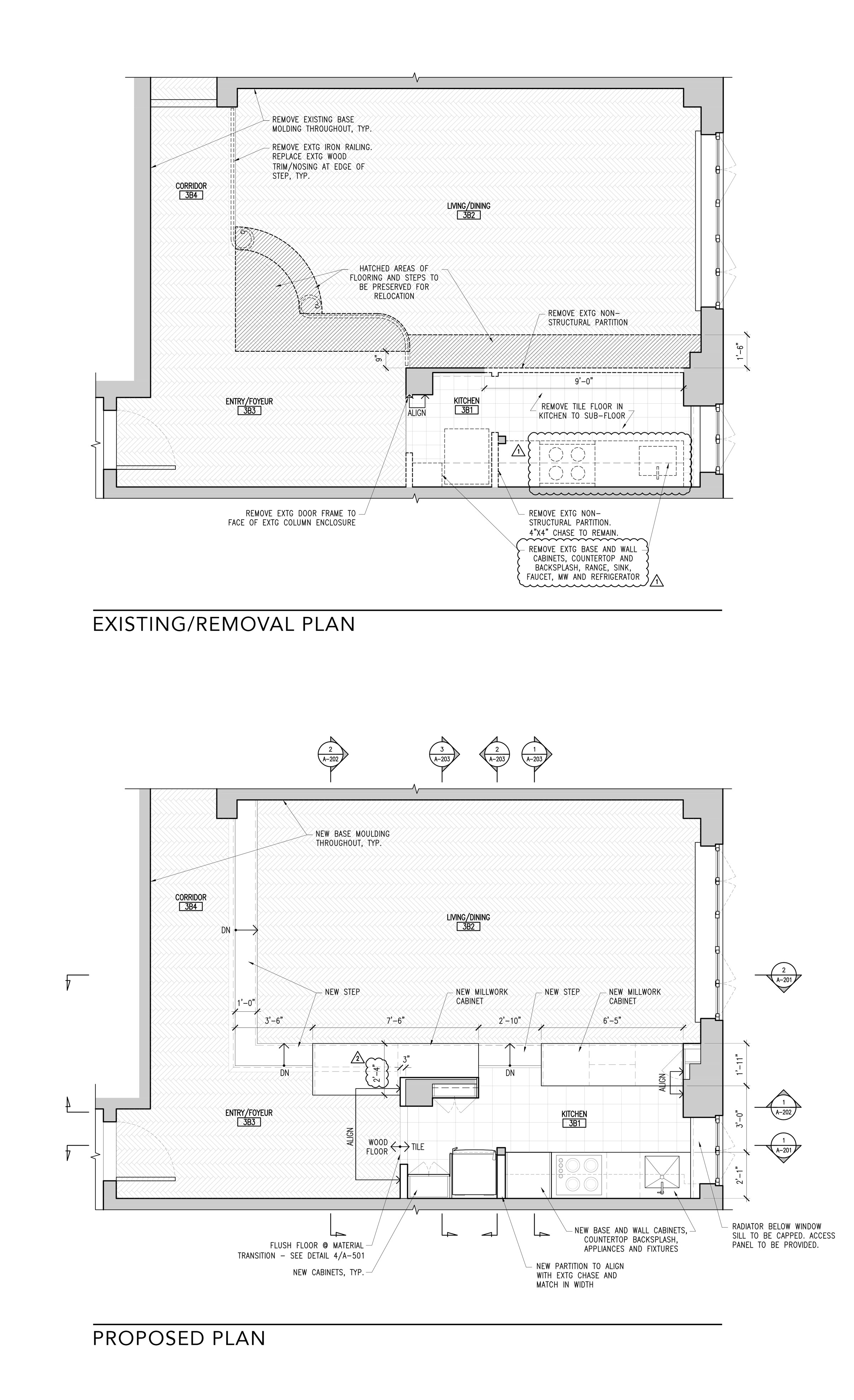
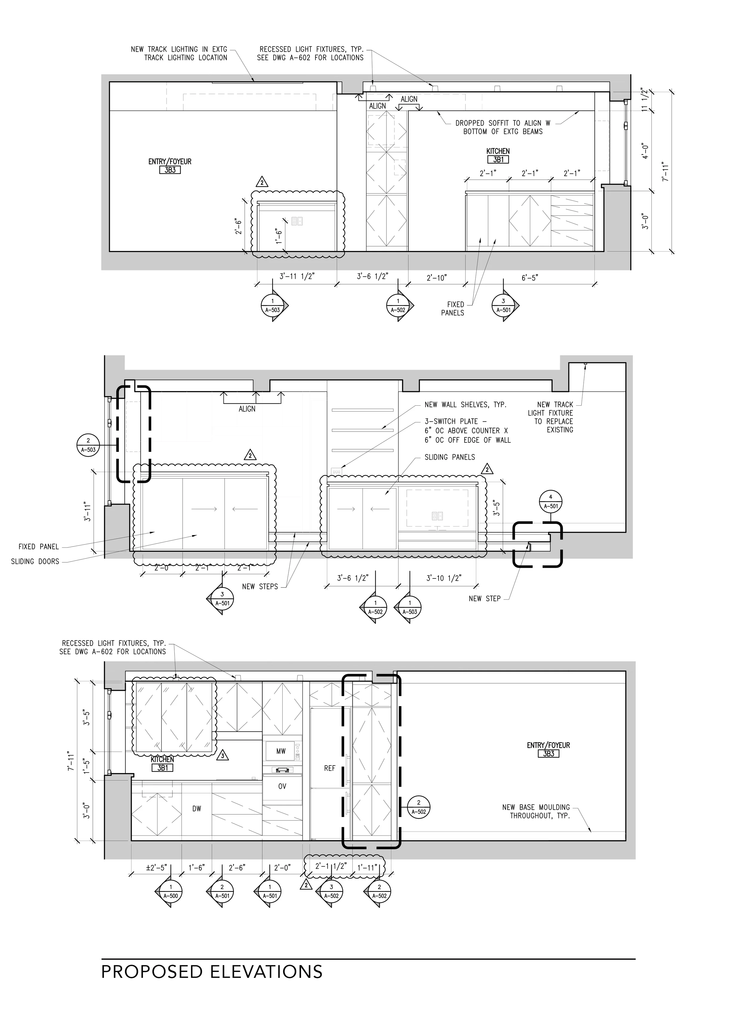
Located in Brooklyn in an apartment overlooking the Brooklyn Heights Promenade, the challenge for the design consisted of adding usability and functionality to a kitchen while unifying - both aesthetically and spatially - it with an existing living and dining area.

Originally separating the kitchen from the sunken living and dining area, a wall was removed in favor of millwork running virtually the entire length of the space. This allowed for the maximization of counter surface area, storage and services (accessible on each side), a zone capable of accounting for the height difference between the two spaces, and an addition of visual width and natural light into the original living and dining space. 

The design focused heavily on implied definitions of space with use of alignments of new and existing massing, allowing for both unification and independence of spaces in their own right while promoting a visual connectivity through a set of implied axis'.

The project was designed and completed from 2014-2015.

coverimage_01.jpg
axon_01.jpg
plans2.jpg
elevations1.jpg
SECTIONS1.jpg
detail_01.jpg
detail_02.jpg